Programme
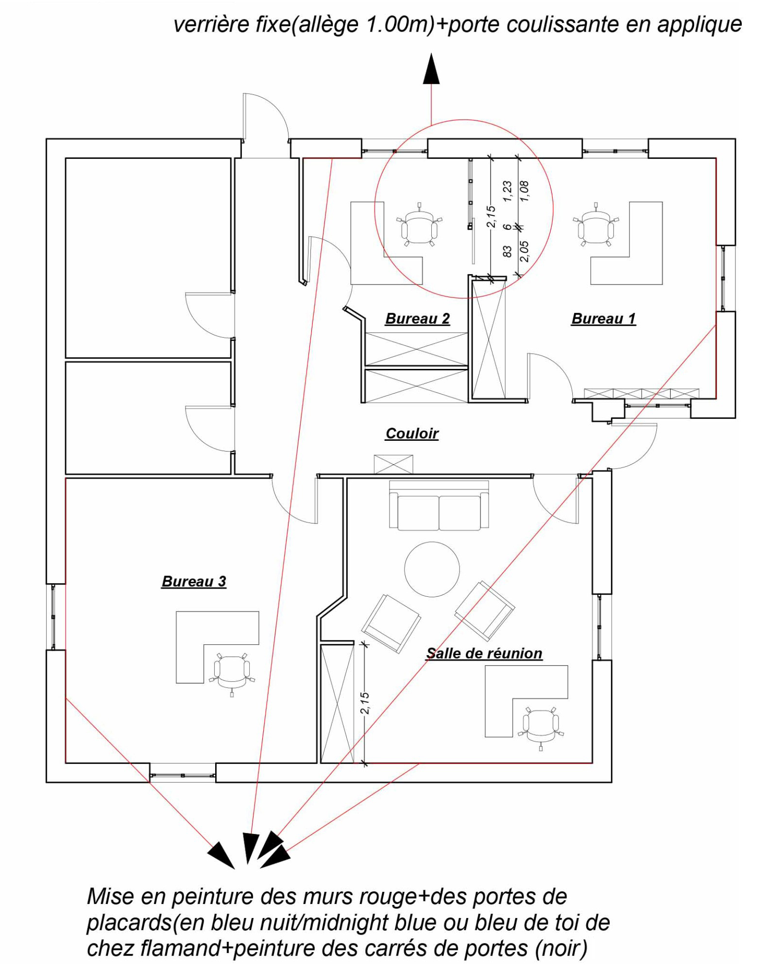
Création d’une ouverture avec porte coulissante entre 2 bureaux + mise en couleurs des murs.
Plaintel (22)
Type : Aménagement de bureaux
Surface : 2X20 m²
Montant : 8 000 € TTC
Mission : Plans
Statut : Achevé en 2024
Création d’une ouverture avec porte coulissante entre 2 bureaux + mise en couleurs des murs.